Представяме ресторант под наем със зимна и лятна градина в непосредствена близост до НДК, в идеалния център на София.
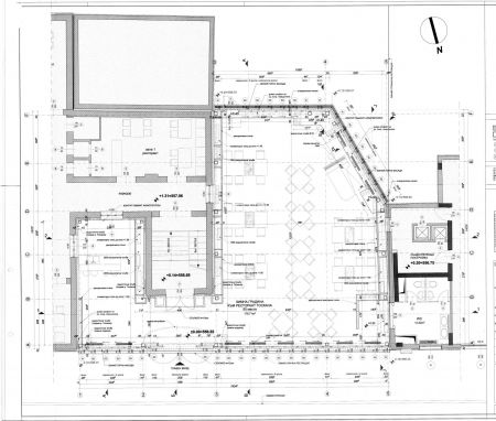
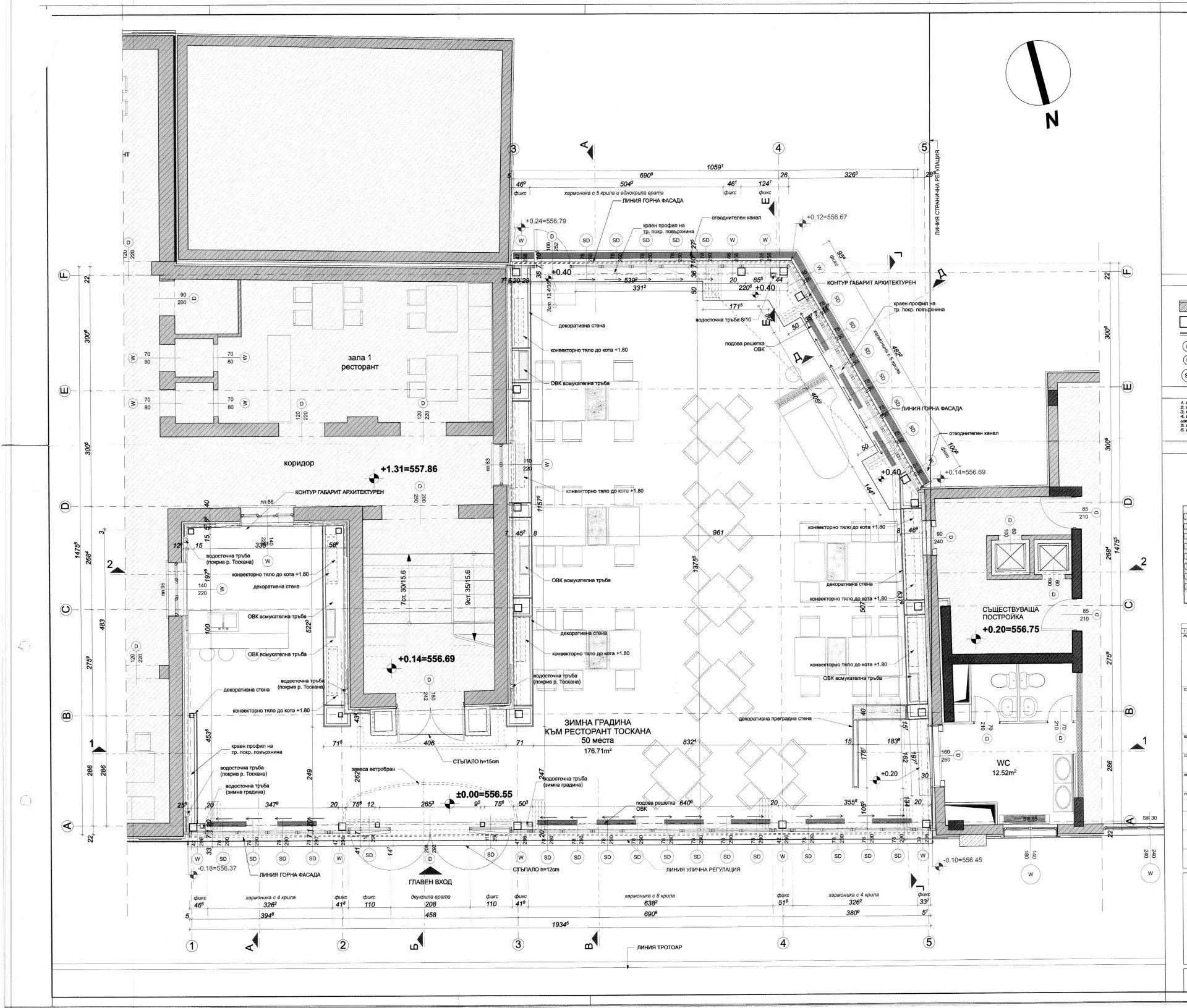
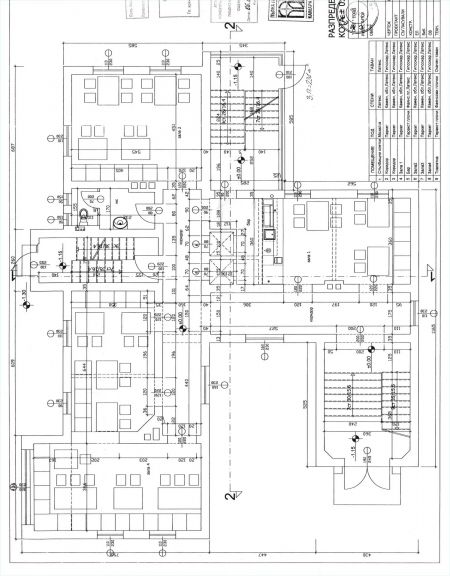
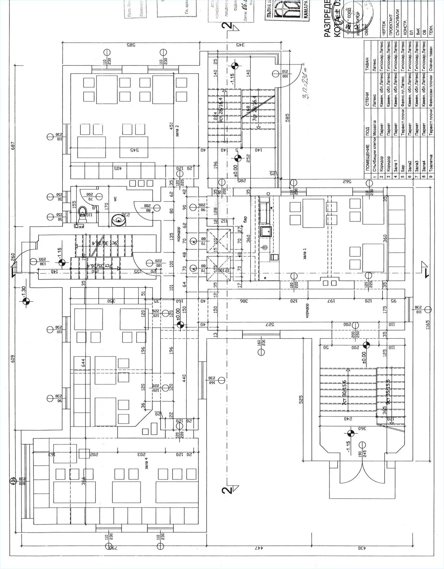
Площи и капацитет на ресторанта:
• Сутерен/ кухня – 213 кв.м;
• Етаж 1 – 237 кв.м (приблизително 70 седящи места);
• Зимна градина/ партер – 216 кв.м (приблизително 90 седящи места);
• Лятна градина – 160 кв.м (приблизително 70 седящи места).
Инфраструктура и оборудване:
• Централно отопление (ТЕЦ);
• Сигнално-охранителна система (СОТ);
• Озвучителна система;
• Видеонаблюдение;
• Два кухненски асансьора;
• Изградена кухненска вентилация на ниво партер и сутерен;
• Пещ за пици;
Санитарни възли:
• Три санитарни възела, достъпни за клиенти.
Паркиране и външни площи:
• Възможност за договаряне на паркоместа от прилежащ паркинг;
• При интерес, наемателят може да изгради покрита градина за целогодишно ползване;
• Лятната градина заема част от паркинга в периода май – септември.
ТИП ИМОТ:
РЕСТОРАНТ, БАР
Локация:
гр. София, кв. Център, Софийска област
Наем:
9 500 €/месец
(без ДДС)
18 580 лв./месец (без ДДС)
18 580 лв./месец (без ДДС)
REF. #:
86430795 - SOF-135257
ТИП ИМОТ:
РЕСТОРАНТ, БАР
Локация:
гр. София, кв. Център, Софийска област
Площ:
665 м2
Площ на парцела:
160 м2
Етаж:
0-1
Етажност:
2
Наем:
9 500 €/месец
(без ДДС)
18 580 лв./месец (без ДДС)
18 580 лв./месец (без ДДС)
КОМИСИОНА ОТ НАЕМАТЕЛЯ:
1 месечен наем (БЕЗ ДДС)
