Предлаганият бизнес център постига своята основна цел – хармоничен баланс между функционалност, качество, комфорт и естетика, в пълно съответствие с най-новите строителни норми и изисквания за енергийна ефективност. Проектът е създаден, за да отговори на динамичните нужди на съвременната бизнес среда, като съчетава утвърдени корпоративни стандарти с иновативни дизайнерски и архитектурни решения.
Сградата предлага уникална концепция, в която изкуството, технологиите и природата съжителстват в една вдъхновяваща градска среда. Пространствата са проектирани така, че да стимулират креативността, продуктивността и благосъстоянието на служителите и посетителите, превръщайки работната среда в място за идеи, срещи и развитие.
Локация и градска достъпност
Бизнес центърът е разположен в кв. Манастирски ливади, на едва 100 метра от Околовръстния път и на около 10 минути с автомобил от идеалния център на София. Локацията осигурява бърз и лесен достъп от всички ключови направления на града, като същевременно гарантира по-тиха и комфортна работна среда, отдалечена от интензивния градски шум.
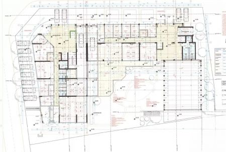
Архитектура и основни параметри
• Застроена площ: 1 077 кв.м
• Обща разгъната застроена площ: 6 903 кв.м
Пететажната сграда е проектирана като два самостоятелни и независими блока – Блок А и Блок Б, допълнени от мултифункционална зала, кафене и озеленен двор с площ 700 кв.м, оформен като градина с водна каскада, достъпна за служители и посетители.
Функционално разпределение и удобства
Всяко от двете крила разполага със:
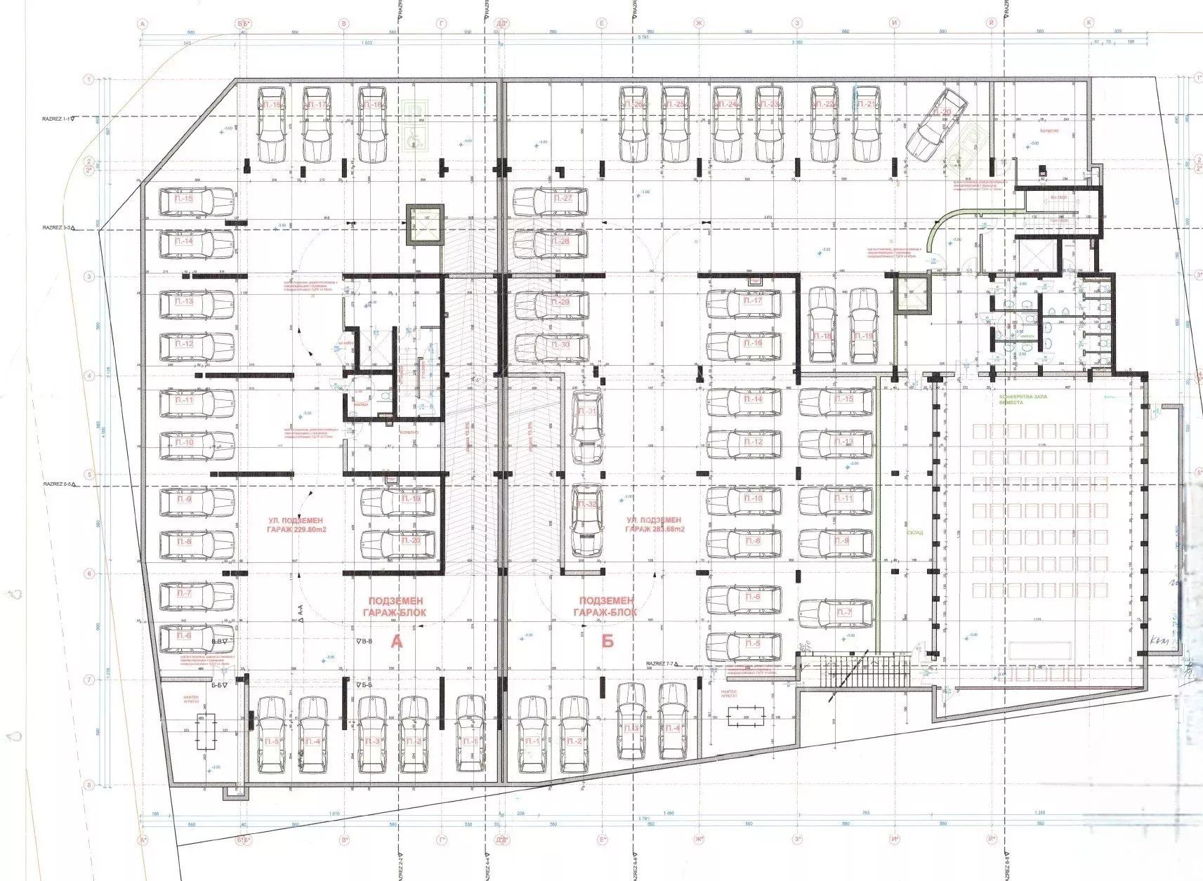
• Подземен паркинг с капацитет от 52 паркоместа
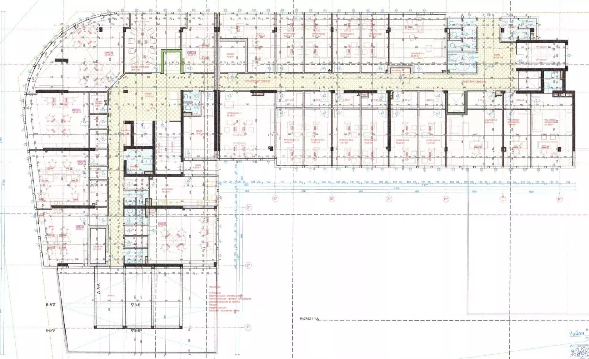
• Две представителни фоайета, изпълнени с изключително внимание към дизайна и материалите
• Фоайето на Блок А впечатлява с таван от черно стъкло, бели стъклени стени и артистично пано на Sicis, изработено от платинени, златни, сребърни и стъклокерамични елементи.
• Фоайето на Блок Б залага на органични форми, бяло стъкло с неправилна геометрия и жива стена от естествена растителност с площ 20 кв.м, създаваща зона за отдих и релакс.
• Сградата е оборудвана с четири високотехнологични асансьора OTIS с луксозно ниво на изпълнение.
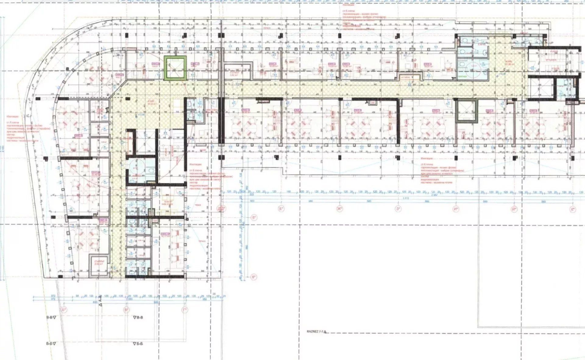
Офис пространства и технологии
Офисните площи са проектирани с безгредови конструкции, които позволяват максимална гъвкавост и адаптация към различни бизнес модели. Изпълнението включва:
• Двойни подове Lindner за всички инсталации
• Окачени растерни тавани Knauf
• Климатизация и вентилация чрез конвекторни тела Daikin
• Възможност за бързо преструктуриране на пространствата
Всички етажи са с ограничен достъп чрез картова система, а сигурността е осигурена чрез видеонаблюдение, контрол на достъпа и 24-часова физическа охрана.
Осветлението в общите части е решено с иновативни комбинации от барисол и вградени осветителни тела, управлявани чрез мултифункционални touch-screen контролери.
Тераси, фасада и екстериор
Терасите са с двойни подове от гранит, оборудвани с нагревателни кабели за комфортно използване при всякакви атмосферни условия.
Фасадната концепция изразява двойствеността между устойчивост и съвременност, чрез комбинация от окачена фасада, естествен гранит, стъкло и алуминиеви композитни панели с гранитно покритие.
Мултифункционална зала и градина
Мултифункционалната зала с площ 215 кв.м и височина 5 м е оборудвана за конференции, презентации и събития, включително със система за симултанен превод, озвучаване и прожекции. Английският двор с екзотична растителност и директен излаз към градината допринасят за уникалната атмосфера на пространството.
Работна среда с визия
Сградата предлага изобилие от естествена дневна светлина на всички основни етажи, а от горните нива се разкриват панорамни гледки към София и Витоша. Това превръща бизнес центъра в устойчиво, престижно и вдъхновяващо място за работа, отговарящо на изискванията на международни компании и корпоративни наематели.
ТИП ИМОТ:
ОФИС (СГРАДА)
Локация:
гр. София, Софийска област
Цена:
11 000 000 €
(без ДДС)
21 514 130 лв. (без ДДС)
21 514 130 лв. (без ДДС)
REF. #:
86712586 - SOF-137596
ТИП ИМОТ:
ОФИС (СГРАДА)
Локация:
гр. София, Софийска област
Площ:
6903 м2
Цена:
11 000 000 €
(без ДДС)
21 514 130 лв. (без ДДС)
21 514 130 лв. (без ДДС)
КОМИСИОНА ОТ КУПУВАЧА:
3% (БЕЗ ДДС)
